Aberdyfi Community Projects Ltd.
Prosiectau Cymunedol Aberdyfi Cyf.

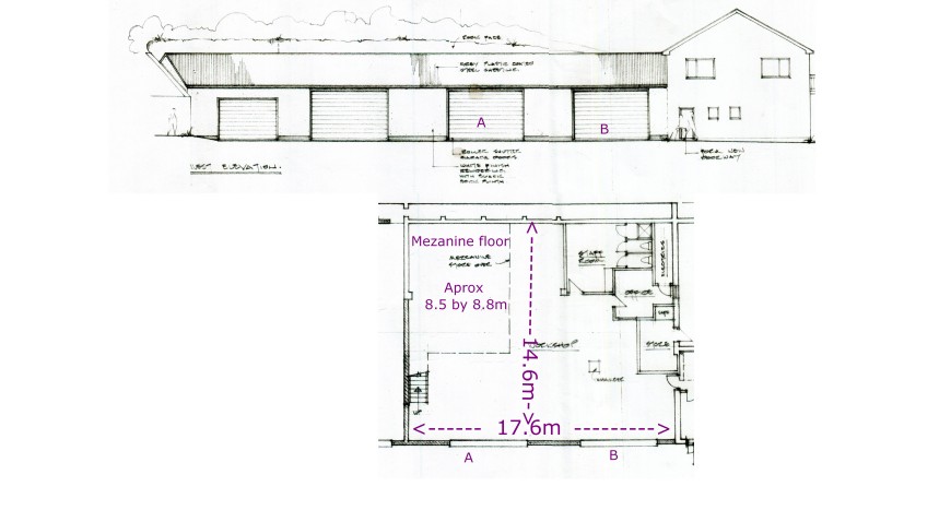
We will shortly be offering the middle unit of the building to one or more small enterprises.  At the moment the area marked 'WORKSHOP' is available as a single large area with an upstairs mezzanine section but it can be divided in several ways as needed. The left section (furthest two roller doors in the photograph) will return to use as a vehicle repair and MOT station. The middle unit has two rollover doors 'A' and 'B'.  The image will alternate between floor plan and an outside view of the middle unit.  If you are interested in renting the workshop area, please  complete the form below the pictures and we will contact you with more information.
Please enter your contact details then click the 'Send Enquiry' button